4358 72nd Drive NE, Marysville, WA, 98270
4358 72nd Drive NEMarysville, WA 98270
Listing courtesy of Ebrima Wadda of Windermere Real Estate/M2, LLC


Mortgage Calculator
Monthly Payment (Est.)
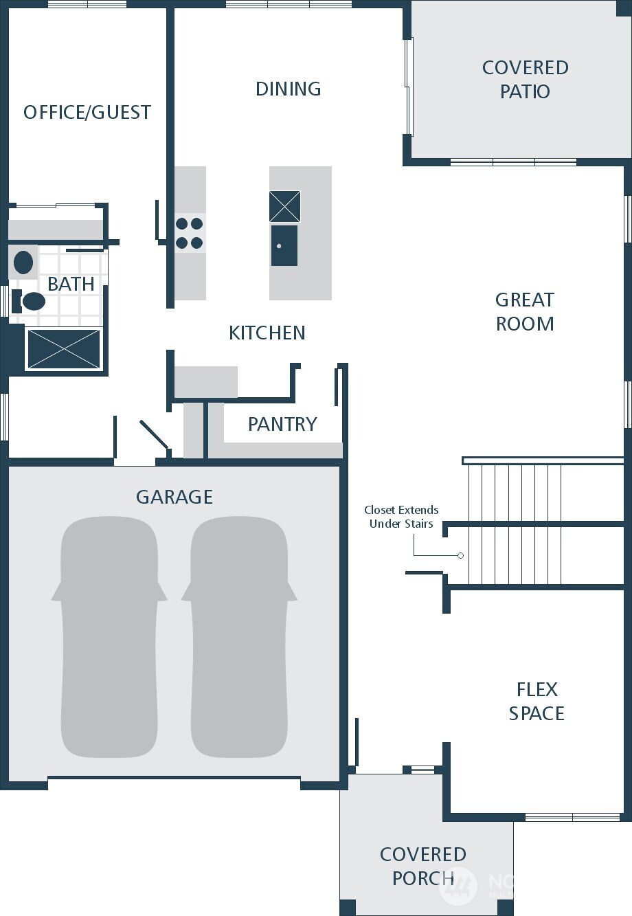
$3,650Welcome to the Savannah plan on Lot 49 in the beautiful new Williams Pointe community, a thoughtfully designed 3,059 sq ft home that blends modern comfort with timeless style. This spacious layout features five bedrooms and 2.75 bathrooms, including a convenient main-floor bedroom paired with a three-quarter bath—ideal for guests or multigenerational living. The main level also offers a dedicated flex space, perfect for a home office, playroom, or hobby area, along with an open-concept design showcasing gorgeous laminate hardwood flooring throughout the kitchen, dining area, and great room. White painted millwork and classic five-panel doors add a clean, elegant finish. The kitchen shines with quartz countertops, stainless steel appliances, and smart functionality ideal for everyday living and entertaining. Upstairs, enjoy a versatile loft area that provides additional living space for relaxation or media use. The luxurious primary suite serves as a private retreat with a spa-inspired ensuite featuring a relaxing lounge tub. Built with energy efficiency in mind, this new construction home includes an efficient heat pump, modern systems, and the confidence of a new home warranty. Located in Marysville , this home also includes a $15,000 builder credit—making this an exceptional opportunity to own a brand-new, energy-efficient home in a growing community.
| 5 days ago | Listing updated with changes from the MLS® | |
| 5 days ago | Status changed to Pending | |
| a month ago | Listing first seen on site |
Listing courtesy of Ebrima Wadda of Windermere Real Estate/M2, LLC
Listing information is provided by Participants of the Northwest MLS. IDX information is provided exclusively for personal, non-commercial use, and may not be used for any purpose other than to identify prospective properties consumers may be interested in purchasing. Information is deemed reliable but not guaranteed. Copyright 2026, Northwest MLS.
All data is obtained from various sources and may not have been verified by the broker or MLS Grid. Supplied open house information is subject to change without notice. All information should be independently reviewed and verified for accuracy. Properties may or may not be listed by the office/agent presenting the information.
Last checked: 2026-04-30 06:10 AM PDT
